介紹
專為化學品船舶設計,提供安全、可靠的靠泊環境。碼頭配備現代化管線與泊位設施,全天候支援船舶靠泊與操作,確保每一次作業都穩定、安全且高效。無論是卸料還是船舶停靠過程,所有設施均符合國際安全標準,並採用嚴格監控與管理,最大程度保障化學品運作安全,為船舶操作提供可靠保障。
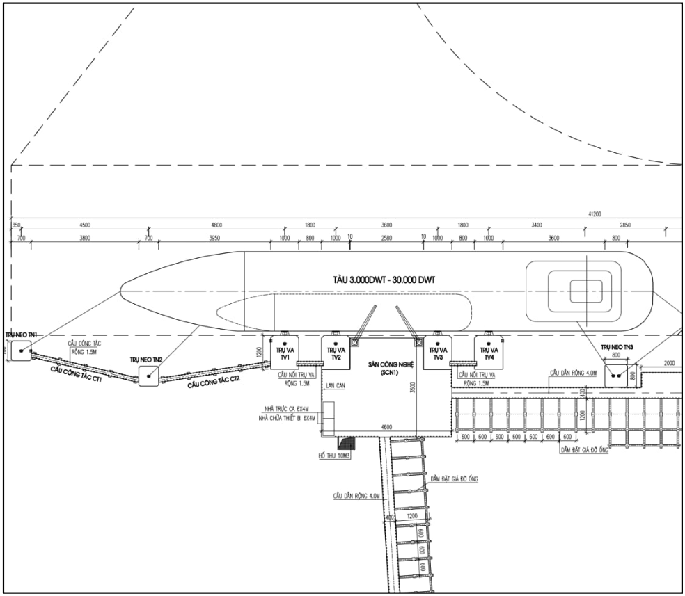
- 30,000噸(DWT)泊位:

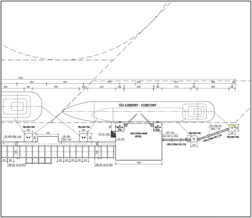
- 10,000噸(DWT)泊位:

專為化學品船舶設計,提供安全、可靠的靠泊環境。碼頭配備現代化管線與泊位設施,全天候支援船舶靠泊與操作,確保每一次作業都穩定、安全且高效。無論是卸料還是船舶停靠過程,所有設施均符合國際安全標準,並採用嚴格監控與管理,最大程度保障化學品運作安全,為船舶操作提供可靠保障。


| 公司名稱 | NAM DINH VU UNIONCHEM TERMINAL CO., LTD. |
| 港口名稱 | UNIONCHEM TERMINAL, HAI PHONG, VIETNAM |
| 泊位名稱 | UNIONCHEM TERMINAL |
| 港口座標 | Lat: 20°81'56.7"N ; Long: 106°82'95.1"E |
| 最大允靠噸位 | 30,000 DWT |
| 泊位吃水深度 | - 9.0 M |
| 航道名稱 | Lach Huyen - Ha Nam |
| 航道吃水深度 | - 8.2 M (From chart datum) |
| 潮差 | 0.00 - 3.60 M |
| 最大允靠船舶總長度 | 188 M |
| 最大允靠船舶寬度 | 30 M |
| 最大允靠船舶吃水 | 8.2 M |
| 最小允靠平行中體長 | 36 M |
| 港口營運時間 | 24/7 |
| 夜航限制 | Allowed |
備註: