介紹
坐落於南亭武工業區核心地帶,Unionchem Terminal 總部辦公大樓 展現了公司專業、永續與創新並重的理念。建築外觀以簡約現代為主軸,兼具功能與美學,象徵Unionchem在越南化學品物流產業中領先與穩健的形象。
大樓外觀以對稱結構與垂直柱體呈現穩重氣勢,大面積玻璃幕牆展現開放與透明精神。正門懸掛醒目的 Unionchem Terminal 標識,成為企業形象的視覺核心。
挑高大廳以石紋材質與金屬格柵為主,搭配柔和燈光,營造沉穩與科技兼具的氛圍。中央樓梯與通透夾層使空間視覺延伸,象徵開放與協作精神,體現Unionchem「安全、精準、現代化」的營運理念。
會議室以木質與大理石紋牆面結合間接燈光設計,營造沉穩、專注的會議氛圍。玻璃隔間使自然光線充分流通,讓部門之間保持開放透明的互動。
管理層辦公室兼具舒適與高效,採用落地窗與中性色調,體現簡約專業風格。員工區採開放式配置,配備人體工學座椅與共享工作桌,充滿自然採光,鼓勵團隊協作與溝通。
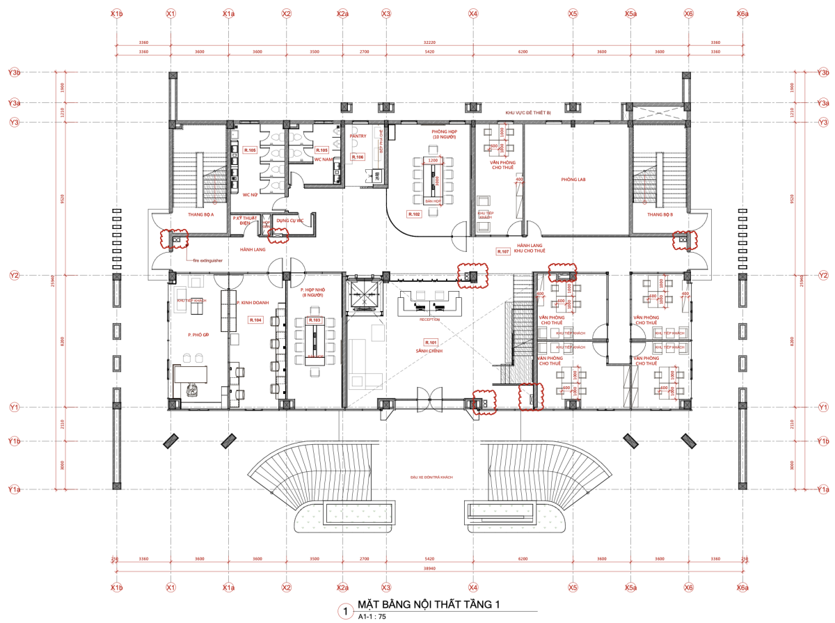
- 辦公大樓一樓平面圖

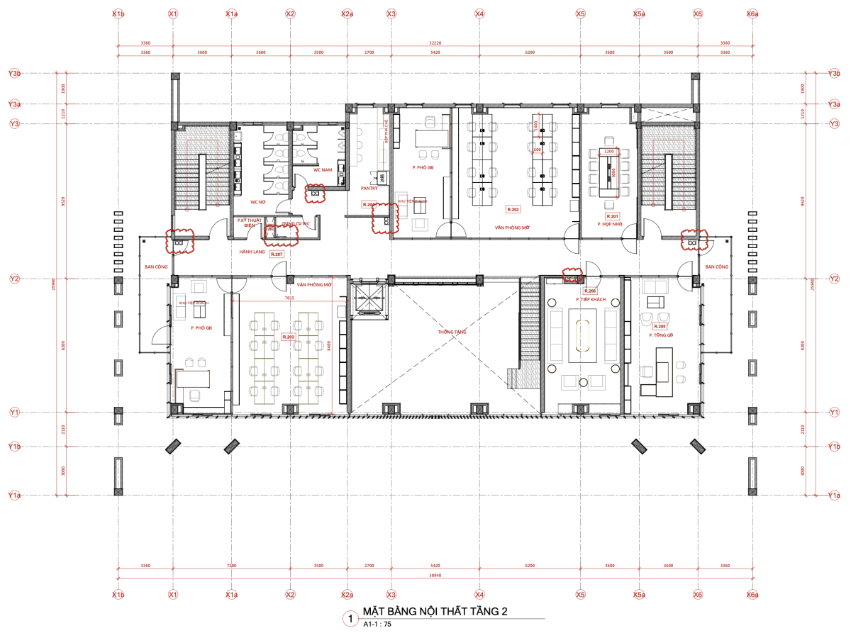
- 辦公大樓二樓平面圖

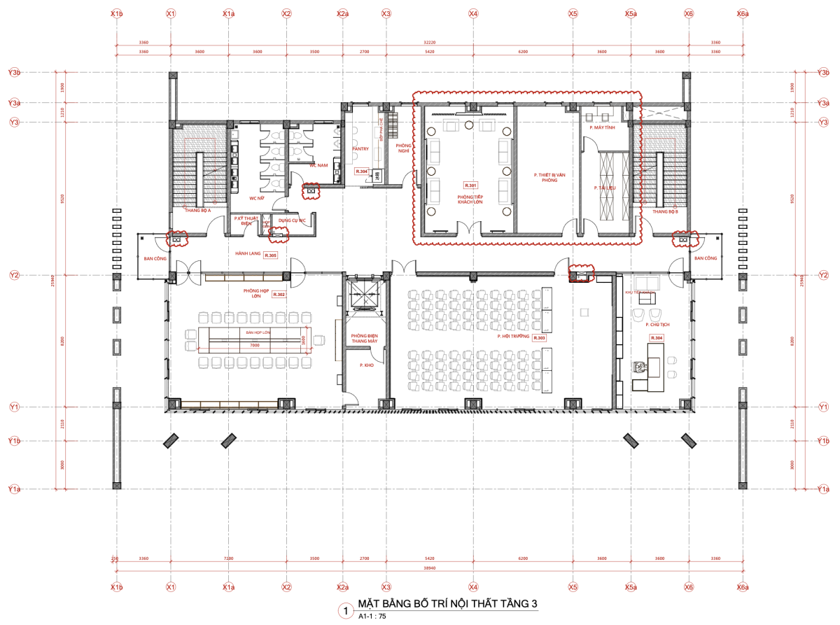
- 辦公大樓三樓平面圖
