介紹
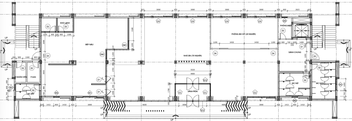
Unionchem Terminal 員工生活大樓 為現場員工與駐廠人員打造一個兼具舒適與現代感的生活空間。三層樓建築結合餐飲、休憩與運動功能,兼顧實用與美感,讓員工在工作之餘擁有放鬆與活力的生活體驗。
一樓設有 寬敞明亮的員工餐廳,以自然木質色系為主,大片玻璃窗引入戶外綠意。長桌式用餐設計與柔和燈光營造出開放、愉悅的氛圍,讓員工在舒適環境中交流與用餐。

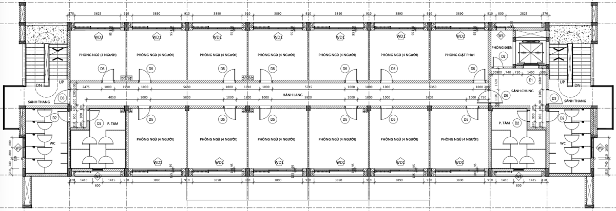
提供四人房等不同配置。每間房配有床鋪、衣櫃、書桌與冷氣設備,設計簡約清爽,注重實用與舒適。
浴室採乾濕分離設計,搭配現代化衛浴設備,確保衛生與便利性。

設置主管單人值班休息套房,並為促進員工健康與身心平衡,三樓特設有 健身房與交誼廳。健身區配置基礎有氧與重量訓練設備;交誼廳則提供輕鬆交流空間,讓員工在下班後可閱讀、聊天或休息放鬆。
